Používame cookies

Používaním týchto stránok súhlasíte s používaním cookies, ktoré nám pomáhajú zabezpečiť lepšie služby. Viac info

 

Predaj novostavieb RD v radovej zástavbe v Ivanke pri Nitre

Ulica: .
Obec: Ivanka pri Nitre
Okres: Nitra
Kraj: Nitriansky kraj
Druh: Domy
Typ: Predaj
Typ domu: Rodinný dom
Iné:
195 000 €
bez dane

Popis nehnuteľnosti

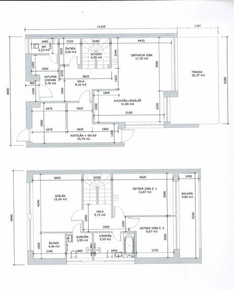
A-Z Reality ponúka na predaj 3 novostavby rodinného domu v radovej výstavbe v stave holodomu:

- nachádzajú sa v okrajovej časti obce, s ľahkým prístupom v súkromnej uličke
- nízkoenergetické domy s predprípravou na fotovoltaiku, krb aj vonkajšie el.žalúzie

- samotný dom je 1 poschodový s celkovou podlahová plochu 144 m2 bez terasy
- dispozícia:  na prízemí sú, vstupná hala, priestranná maximálne svetlá obývačka spojená s kuchyňou a s prístupom na 7mx3m terasu, technická miestnosť s odkladacou časťou a miestnom na pračku aj sušičku, samostatná toaleta  a schodisko na poschodie k 3 izbám a kúpeľni, hlavná spálňa má vlastnú kúpelňu s toaletou a šatník, z 2 izieb je prístup na spoločný balkón
- kúrenie je podlahové pomocou tepelného čerpadla - v zime hreje/v lete chladí miestnosti
- rozvody optického internetu sú zavedené do každej izby
- ku každému domu prislúchajú 2 parkovacie miesta a cca 75 m2 ohradená záhrada za terasou
- vlastný vodomer a elektromer je samozrejmosť taktiež až 20 cm vonkajšie zateplenie
- vonkajší terén je upravený, zámkovou dlažbou vydlážený prístupový dvor s parkovacími miestami na murovanej trávnatej časti

Výborný projekt, použité kvalitné materiály, dôkladné prípravné a staviteľské práce sú garantom dobrej kúpy a následne komfortného bývania!

Dobrá poloha obce (od mesta Nitry) a prostredie v okolí domu sú veľkým plusom tejto ponuky!

Cena domu je 195.000,- € bez dane

Radi Vám domy predstavíme - stačí zavolať 0905 753 455 a stretneme sa na obhliadke.

  • naša realitná kancelária zabezpečuje v rámci provízie všetky potrebné úkony k bezproblémovému prevodu vlastníckych práv na nového majiteľa,
  • pre nás samozrejmé je aj prepis všetkých energií ihneď po odovzdaní nehnuteľnosti novému majiteľovi,
  • kompletne zabezpečíme financovanie kúpy nehnuteľnosti  - vybavíme za Vás všetko od znaleckého posudku až po poistenie nehnuteľnosti s vinkuláciou.
  • v prípade potreby vieme zabezpečiť vypratanie nehnuteľnosti a presťahovanie nábytku.

Vlastnosti

Status:
aktívne
Vlastníctvo:
osobné
Plocha pozemku:
300 m2
Typ zeme:
rovina
Teritórium:
Intravilán
Šírka pozemku:
11 m
Dĺžka pozemku:
25 m
Úžitková plocha:
144 m2
Zastavaná plocha:
68 m2
Podlahová plocha:
144 m2
Skladová plocha:
22 m2
Stav:
novostavba
Počet izieb:
4
Energetický certifikát:
A
Energetická náročnosť budovy:
Nízkoenergetický
Typ budovy:
tehla
Typ výbavy:
nevybavený
Balkón:
áno
Terasa:
áno
Sklad:
áno
Rok výstavby:
2025
Rok kolaudácie:
2025
Celková plocha:
144 m2
Plocha balkóna:
9 m2
Terasa plocha:
20 m2
Počet terás:
1
Počet vonkajších parkovacích miest:
2
Orientácia:
juhovýchod
Inžinierske siete:
áno
Vykurovanie - podlahové:
áno
Internet:
áno
Optická sieť:
áno

Maklér

Ing.Ladislav Gulyás, RSc

Ing.Ladislav Gulyás, RSc

maklér - konateľ spol.

  • Slovensky
  • Magyar
  • rusr
  • sora

 

Pre bližšie informácie a záujem o obhliadky volajte prosím 0905 753 455.

  • naša realitná kancelária zabezpečuje v rámci provízie všetky potrebné úkony k bezproblémovému prevodu vlastníckych práv na nového majiteľa,
  • pre nás je samozrejmé aj prepis všetkých energií ihneď po odovzdaní nehnuteľnosti novému majiteľovi,
  • kompletne zabezpečíme financovanie kúpy nehnuteľnosti  - vybavíme za Vás všetko od znaleckého posudku až po poistenie nehnuteľnosti s vinkuláciou.
  • v prípade potreby vieme zabezpečit vypratanie nehnuteľnosti a presťahovanie nábytku.
  • vieme vystaviť  "potvrdenie o trhovej ceny nehnuteľnosti" potrebné pri dedičskom konaní

Radi Vám poradíme

Podobné nehnuteľnosti