
Ulica: | . |
---|---|
Obec: | Nové Zámky |
Okres: | Nové Zámky |
Kraj: | Nitriansky kraj |
Druh: | Domy |
Typ: | Predaj |
Typ domu: | Rodinný dom |
A-Z Reality s.r.o. Vám ponúka na predaj poschodový rodinný dom - novostavbu v dvojdome:
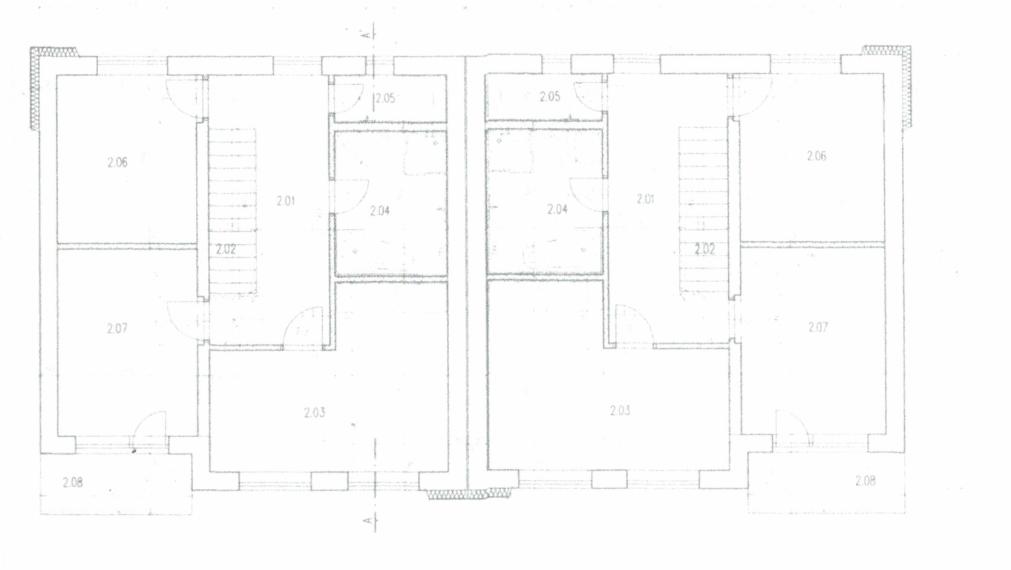
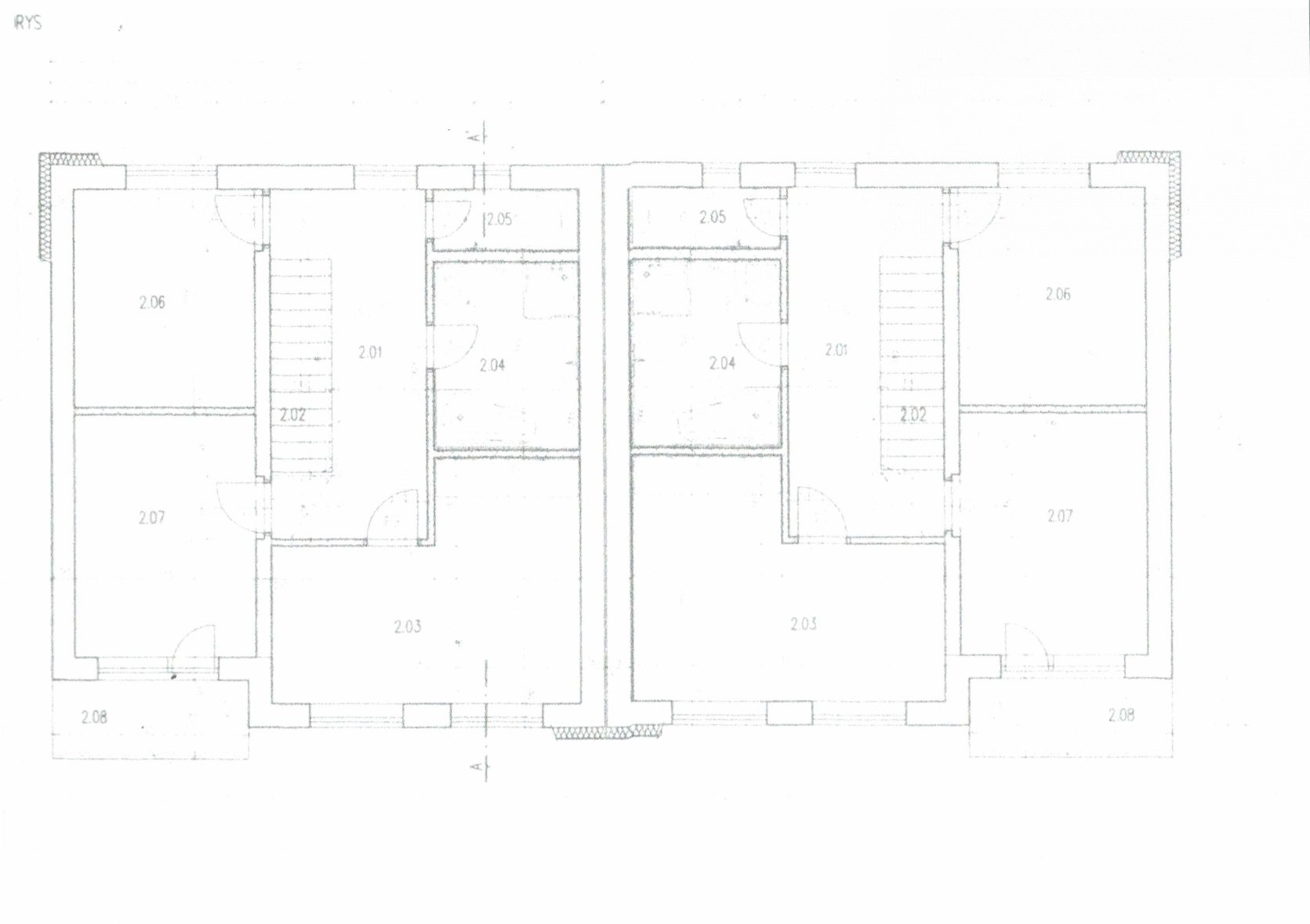
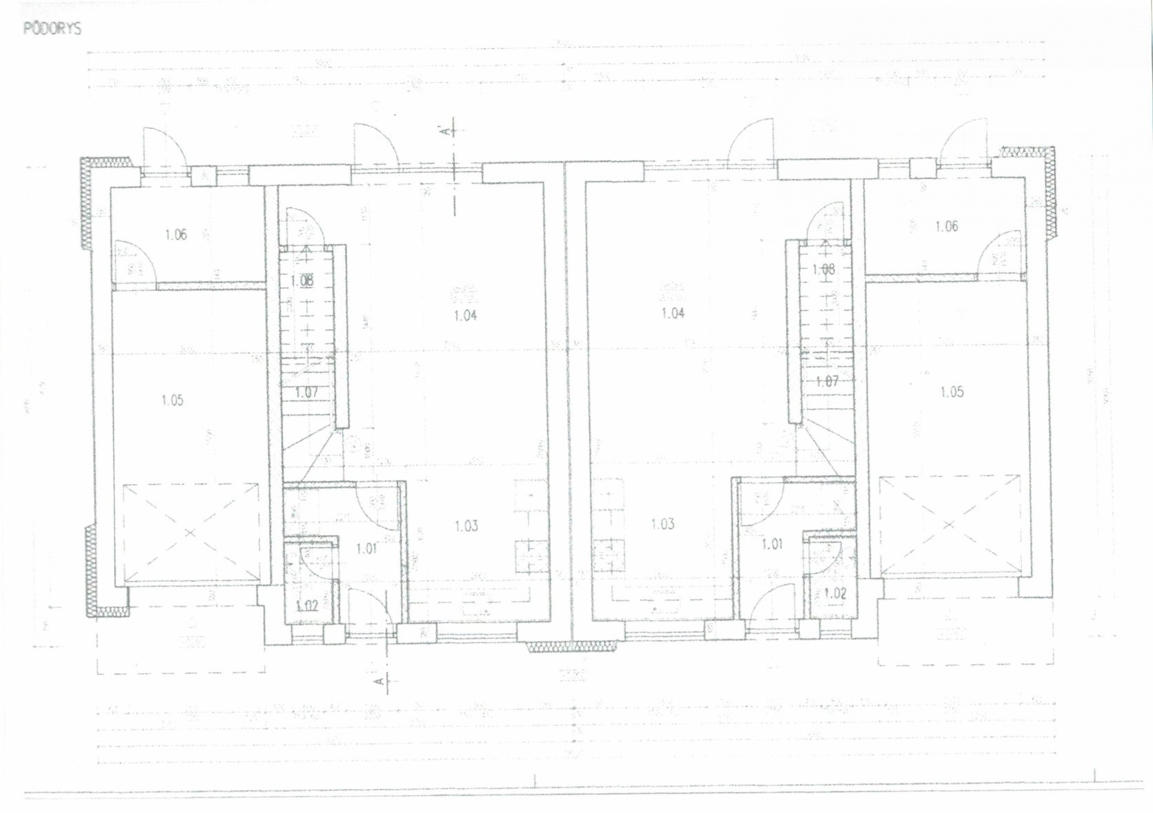
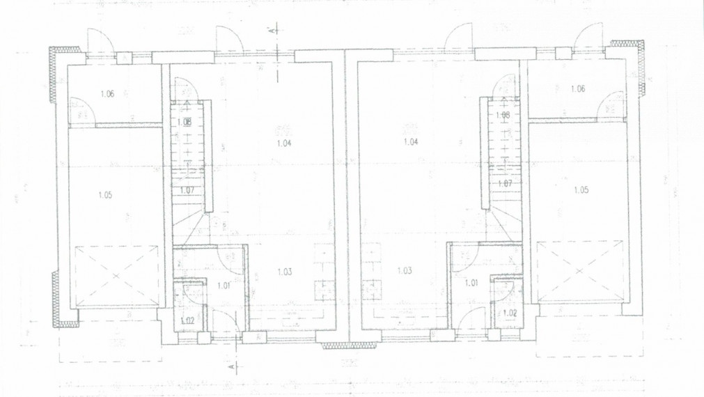
- dom má podlahovú plochu 130 m2
Dispozícia domu:
- na prízemí sa nachádza otvorená kuchyňa spojená s obývačkou, tolaeta a schodisko na 1.poschodie
- garáž na prízemí je s technickou miestnosťou a zadným východom
- na poschodí je priestor na 3 nepriechodné izby (zmena možná) a priestranná kúpeľňa s toaletou
- z prednej strany domu nad garážou je balkón
- dom má vlastnú stenu pri spojení dvoch domov
V domoch je podlahové kúrenie-voda-elektrina s tep.čerpadlom, samozrejme voda, elektrina, domy budú napojené na mestskú kanalizáciu.
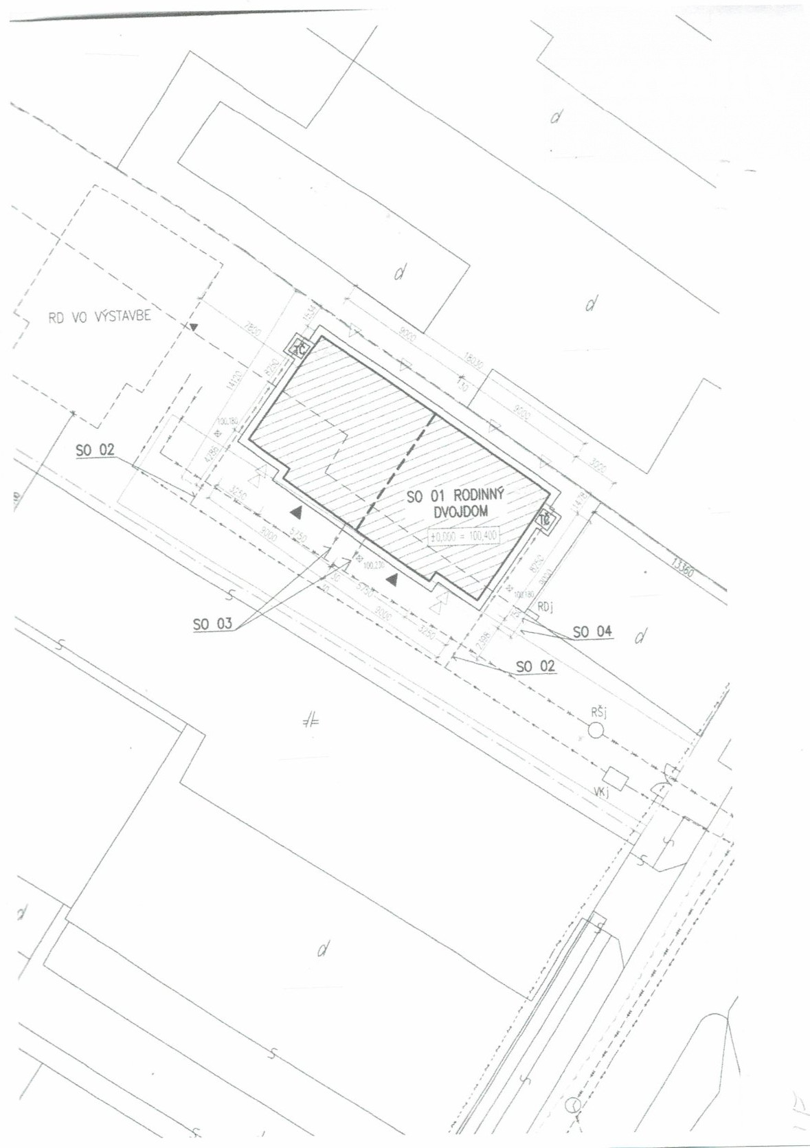
Príchod k domom bude cez rampu na súkromné pozemky vlastníkov domov.
- Cena: 230.000,- €
Ľahká prístupnosť k nehnuteľnosti (10minút pešo od hlavného námestia) a možnosť dokončenia domu podľa vlastných predstáv sú veľkým plusom tejto ponuky!
Pre bližšie informácie a záujem o obhliadky volajte prosím 0905 753 455
maklér - konateľ spol.
Pre bližšie informácie a záujem o obhliadky volajte prosím 0905 753 455.