Používame cookies

Používaním týchto stránok súhlasíte s používaním cookies, ktoré nám pomáhajú zabezpečiť lepšie služby. Viac info

 

Veľký komerčný priestor na prenájom v centre Komárna

Interné ID: MS419
Ulica: Jókaiho
Obec: Komárno
Okres: Komárno
Kraj: Nitriansky kraj
Druh: Priestory
Typ: Prenájom
Typ objektu: Obchodné priestory
Iné:
400 €/mesiac

Popis nehnuteľnosti

Ponúkame na prenájom obchodný priestor na lukratívnom mieste – v pešej zóne priamo v centre mesta, v bezprostrednej blízkosti námestia.

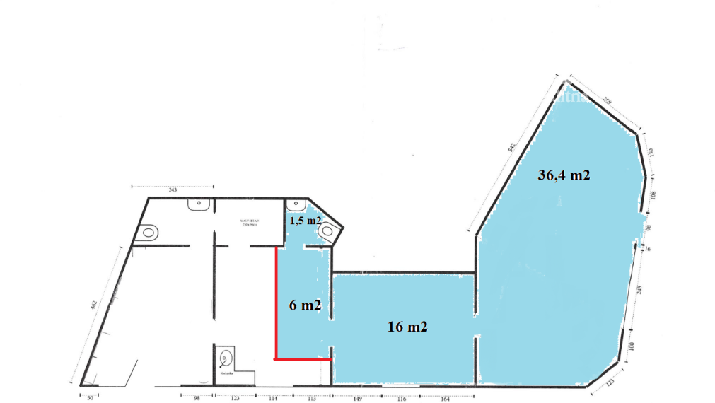
Dispozícia a výmery:

  • veľká miestnosť s výkladom: 36,4 m²
  • dve menšie priechodné miestnosti: 16 m² a 6 m²
  • samostatná toaleta s umývadlom

Celková výmera priestorov je 60 m².

Vchod a veľký výklad sa nachádzajú na rohu Jókaiho ulice a ulice Františkánov, čo zabezpečuje výbornú viditeľnosť a frekventované miesto.

Priestory prešli kompletnou renováciou:

  • nové elektrické rozvody
  • príprava na alarm
  • nočné osvetlenie výkladu s časovačom
  • príprava na vonkajšiu svetelnú reklamu
  • znížené sadrokartónové stropy so zabudovanými bodovými svietidlami
  • nové radiátory napojené na plynový kotol
  • izbový termostat
  • dátové LAN rozvody v každej miestnosti
  • možnosť napojenia na internet
  • nová maľovka

Stavebný materiál: pálená tehla, okná a dvere: drevené,  podlahy: nové laminátové parkety

Priestor má výbornú polohu a široké možnosti využitia, napríklad ako predajňa, kancelária, kaderníctvo, kozmetický salón a podobne.  Možnosť odkúpenia na mieru vyrobeného nábytku nachádzajúceho sa v obchodnom priestore! Odporúčame vidieť osobne.

V prípade záujmu nás neváhajte kontaktovať na telefónnom čísle 0950 803 738.

Cena nájomného:
400 EUR / mesiac + réžia 110 EUR / mesiac.

Bližšie informácie v realitnej kancelárii.


  • naša realitná kancelária zabezpečuje v rámci provízie všetky potrebné úkony k bezproblémovému prevodu vlastníckych práv na nového majiteľa,
  • pre nás samozrejmé je aj prepis všetkých energií ihneď po odovzdaní nehnuteľnosti novému majiteľovi,
  • kompletne zabezpečíme financovanie kúpy nehnuteľnosti  - vybavíme za Vás všetko od znaleckého posudku až po poistenie nehnuteľnosti s vinkuláciou.
  • v prípade potreby vieme zabezpečiť vypratanie nehnuteľnosti a presťahovanie nábytku.

Vlastnosti

Status:
aktívne
Vlastníctvo:
osobné
Úžitková plocha:
60 m2
Zastavaná plocha:
60 m2
Podlahová plocha:
60 m2
Stav:
úplne prerobený
Počet izieb:
3
Pozícia:
Prízemie
Celková plocha:
60 m2
Inžinierske siete:
áno

Maklér

  • naša realitná kancelária zabezpečuje v rámci provízie všetky potrebné úkony k bezproblémovému prevodu vlasníckych na nového majiteľa,
  • pre nás samozrejmé je aj prepis všetkých energií ihneď po odovzdaní nehnuteľnosti novému majiteľovi,
  • kompletne zabezpečíme financovanie kúpy nehnuteĺnosti  - vybavíme za Vás všetko od znaleckého posudku až po poistenie nehnuteľnosti s vinkuláciou.
  • v prípade potreby vieme zabezpečit vypratanie nehnuteľnosti a presťahovanie nábytku. 

vieme vystaviť  ,,potvrdenie o trhovej ceny nehnuteľnosti ,, potrebné pri dedičskom konaní, 

Radi Vám poradíme

Podobné nehnuteľnosti